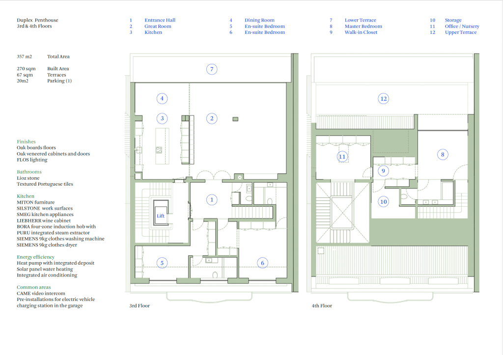
No Longer Available, Rua do Salitre: Stunning Penthouse Duplex: Large outdoor space, Elegant refurbishment with High End finishing & Amenities. 270m2, + 67 m2 Terraces, 100m2 Open Living space comprising Kitchen, 3 bedrooms, 3 bathrooms + guest lavatory and 1 car parking space




























