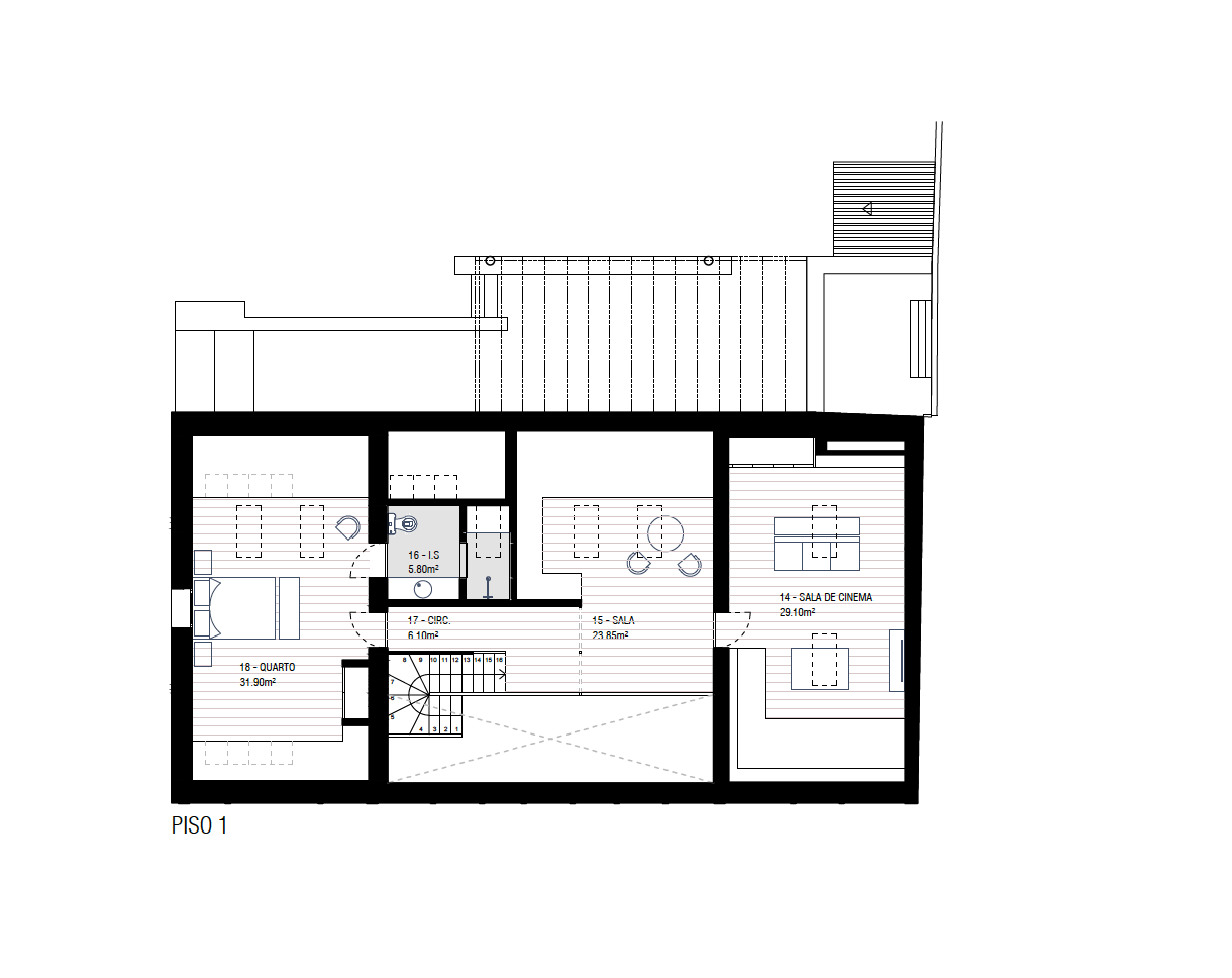
For Sale, City of Grândola: Beautiful Family Home with Approved Refurbishment Project, From the base of the current ruin, project entails 490 m² divided in two dwellings, a 320m2 main house and a 170m2 cottage, within a closed 1100 m² garden with a large swimming pool. Ready for construction.
€ 850,000

















#forsale #realestate #grandola #realestatebroker #alentejo#realestateinvesting #portugal #familyhome #morethanjustrealestate #luxurylifestyle#luxuryrealestate @pax_et_copia