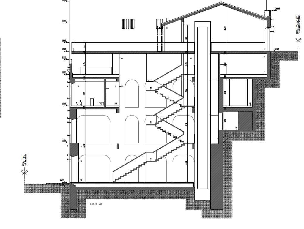
For Sale, Alfama, Magnificent Architectural Project: The last industrial building in the center of town, 800 m² with an additional 200 m² approved for a 4 Apartment refurbishment, stunning River views and 2
€ 3.5M.
terraces #forsale #lisbon#realestate #portugal#apartmentbuilding #refurbishment#realestatebroker #apartments#realestateinvesting #riverview#paxetcopia #luxurylifestyle#luxuryhomes @pax_et_copia








