Skip to content
Pax et Copia
Real Estate Advisory in Portugal
Menu
+
×
expanded
collapsed
Contact
About
Instagram
Previous Image
Screenshot 2019-03-12 at 00.13.20
Post navigation
Published in
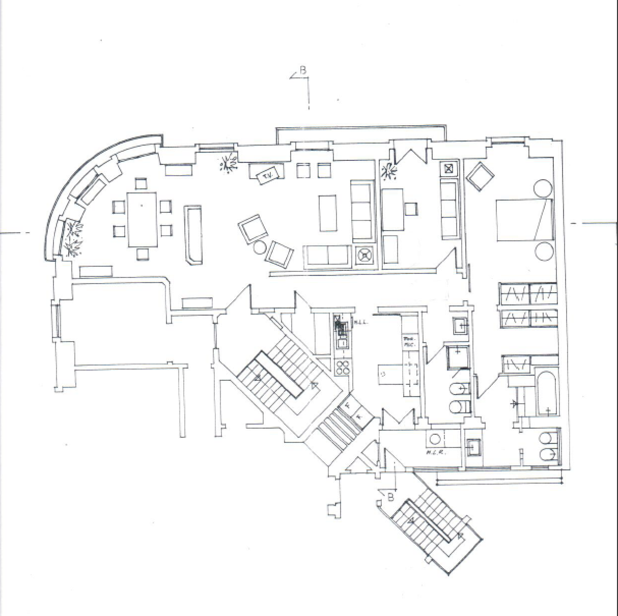
For Sale, Ajuda: Sunny pied-à-terre
Leave a comment
Cancel reply
Δ
Comment
Subscribe
Subscribed
Pax et Copia
Join 141 other subscribers
Sign me up
Already have a WordPress.com account?
Log in now.
Pax et Copia
Subscribe
Subscribed
Sign up
Log in
Copy shortlink
Report this content
View post in Reader
Manage subscriptions
Collapse this bar